MEP - MANUFACTURE - GRAND-PRÉ

 

Les principes qui guident le développement du projet sont fondés dans les qualités pré existantes du site.

Il ne s’agit en aucun cas de résistance face aux développements des alentours et du quartier de la Manufacture, mais de mettre en valeur et de tirer profit du caractère des usages présents.

Les développements prévus dans les périmètres alentours atteignant des gabarits bien plus élevés, nous pensons utile de relever la relative modestie des nouveaux volumes proposés, qui cherchent à créer un contexte s’accordant avec le gabarit des bâtiments de la Manufacture, et à organiser la transition volumétrique allant crescendo d’est en ouest du site.

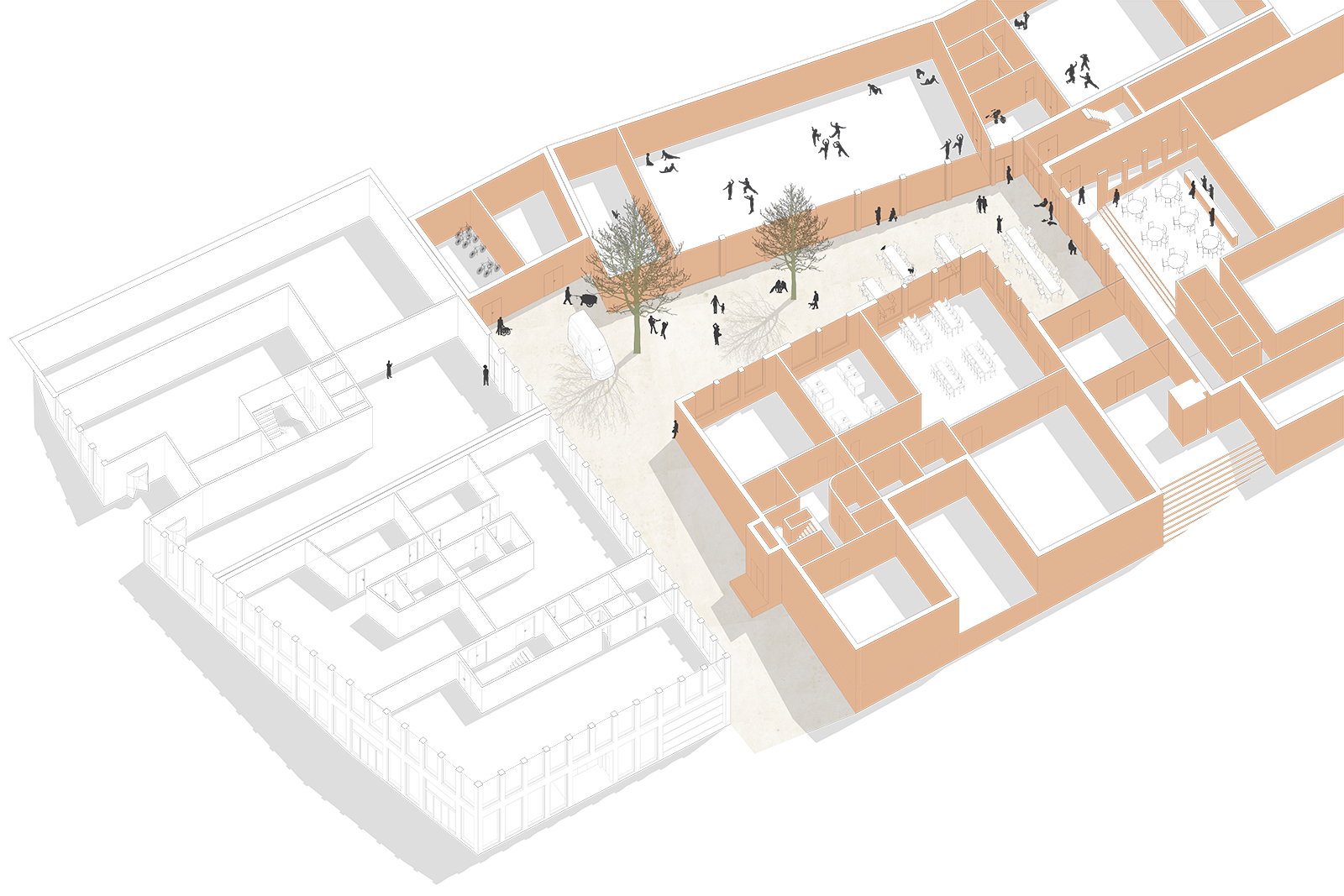
 La proposition illustre une volonté de construire une réflexion par le vide, en s’attachant à la qualité des espaces extérieurs publics et semi publics ouverts et perméables : esplanade, rues, ruelles, place, placettes...

 La référence au “Village” nous semble être intéressante pour illustrer l’ambiance générale recherchée pour le développement du périmètre de réflexion et le rôle qu’il peut jouer au sein d’un périmètre plus grand, celui de Malley / Galicien / Sébeillon, voire à l’échelle de la ville, à l’image, toutes proportions gardées, du rôle historique joué par Greenwich Village à New York.

MEP MANUF
AXONOMETRIE
AXONOMETRIE ZOOM
FINAL_02_bis-1600

LE VILLAGE MANUFACTURE

type : mandat d'études parallèles sur invitation à deux degrés
client : CFF Immobilier - Régie Chamot et Cie 
lieu : Lausanne, Vaud
programme : Elaboration du concept urbanistique pour la requalification du quartier Manufacture - Grand-pré

surface : env. 20'000 m2 SP SIA 416
début de l’étude : 2021
réalisation : --
durée des travaux : --
coût construction : --

phase : 2ème degré livré et exposé

collaboration : In Situ architectes paysagistes 
team : Louise Nicolas, Sarah Sauthier, David Vessaz, Patrick Wenger
images 2ème degré : Camera Picta 

AUTRES PROJETS

LOSIARDES 6Réalisé

PARC DU LOUP 3Réalisé

MAISON DE L'ENFANCE ET PARKINGConcours ouvert - 5ème rang / 4ème prix

GRAND-RUE 54Réalisé

LUANRéalisé

BROCConcours - Dernier tour de jugement

CHAMP-RONDRéalisé

BEAUSOBREConcours - 2ème tour de jugement

PRE-YVERDONRéalisé

LES BRENETSConcours - Dernier tour de jugement

ST-ROCH 13Réalisé

DIABLERETS 11Réalisé

PESTALOZZIConcours

FICHES NORD LOT 11Concours - 5ème rang

NAXRéalisé

FICHES NORD ECAConcours - 3ème rang

VERNANDConcours - 2ème rang

BEAUMONT 64Réalisé

LA JORANERéalisé

GALICIENRéalisé

MEP PALEZIEUXConcours - 2ème rang